Заказать обратный звонок
Имя
Номер телефона
Комментарий

 

СТРОИМ ДОМ ДЛЯ КАЖДОЙ СЕМЬИ!

Строгая система контроля на каждом
этапе строительства.

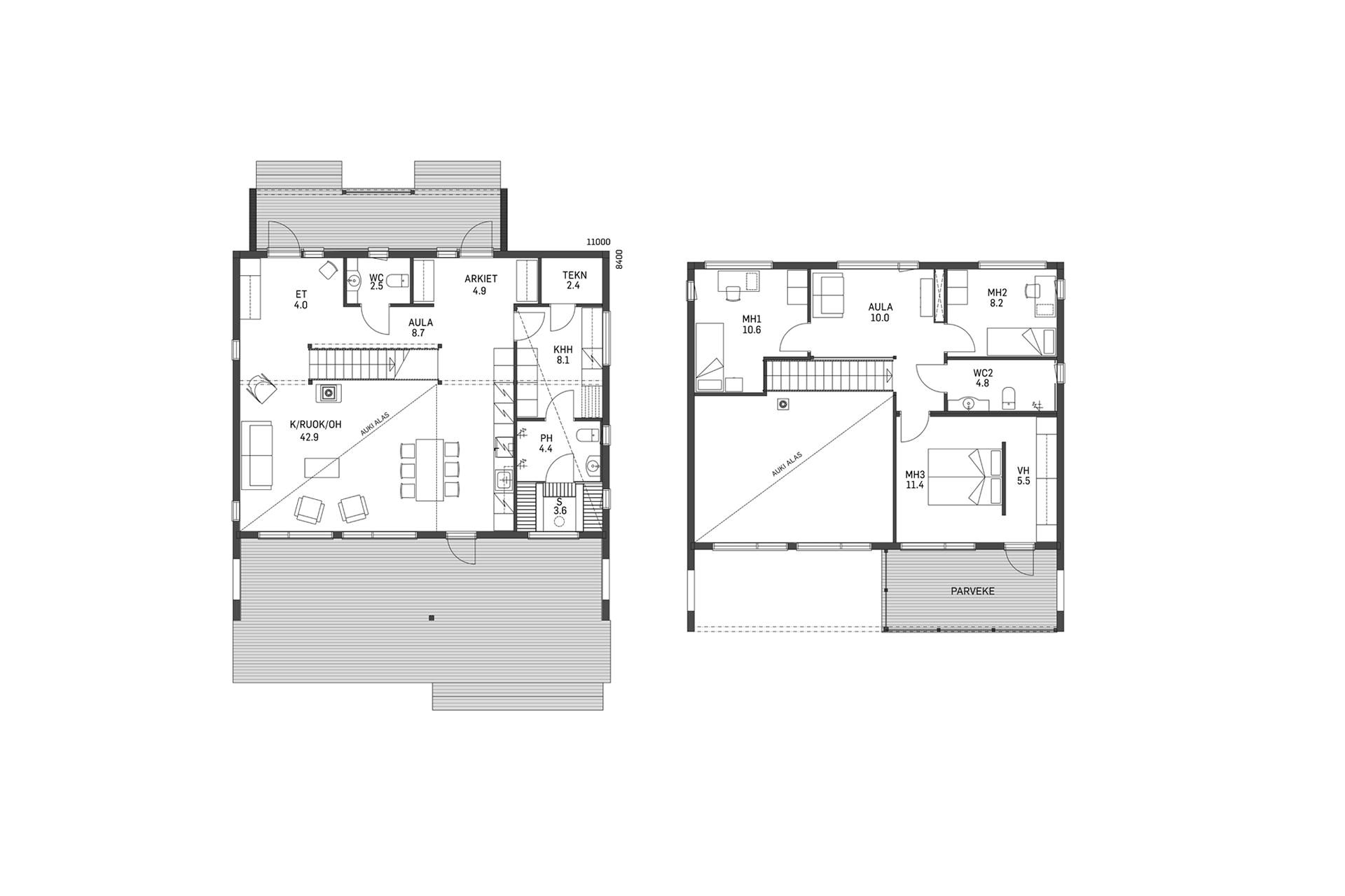
Проект 77

Характеристики

Стандарт:

0

Комфорт:

0

Премимум:

0

Площадь

153 м2

Высота 1-ого этажа:

2,7 м

Высота 2-ого этажа (Если имеется):

2,5 м

Форма дома

Прямоугольная

Стиль дома

Классический стиль

Стандарт Комфорт Премиум
0 0 0
ФУНДАМЕНТ
1 Cваи    
2 Ленточный      
3 Монолитный      
ОСНОВНОЕ
4 Индивидуальная перепланировка и привязка дома к участку      
5 Сборка на участке      
6 Проектная документация АР, КД, КЖ      
7 Доставка до 30 км от КАД      
8 Разгрузка (не более 10 м до места складирования)      
ОБВЯЗКА ОСНОВАНИЯ
9 Пакет из трех сшитых досок 150 х 150 мм      
СИЛОВОЙ КАРКАС КАПИТАЛЬНЫХ СТЕН
10 Вертикальные стойки – сухая доска сечением 50x150 мм, шаг 580 мм      
11 Горизонтальные разделители – сухая доска сечением 50x150 мм      
12 Врезные укосины – сухая доска сечением 25x150 мм      
13 Подкладная доска – сухая доска сечением 25x150 мм      
14 Обвязочный верхний пояс – сухая доска сечением 50x150 мм      
СИЛОВОЙ КАРКАС ВНУТРЕННИХ ПЕРЕГОРОДОК
15 Вертикальные стойки – сухая доска сечением 50x100/150 мм, шаг 580 мм      
16 Горизонтальные разделители – сухая доска сечением 50x100/150 мм      
17 Врезные укосины – сухая доска сечением 25x150 мм      
18 Подкладная доска – сухая доска сечением 50x100/150 мм      
19 Обвязочный верхний пояс – сухая доска сечением 50x100/150 мм      
20 Ригель несущих перегородок – сухая доска сечением 50x150 мм      
Полы первого и второго этажей
21 Лаги – сухая доска сечением 50x200 мм, шаг 580 мм      
СТРОПИЛЬНАЯ СИСТЕМА
22 Стропила – сухая доска сечением 50x200 мм, шаг 580 мм      
23 Затяжка – сухая обрезная доска сечением 50x200 мм, шаг 580 мм      
24 Ригель – сухая доска сечением 50x200 мм      
25 Конек – сухая доска сечением 100x150 мм      
НАРУЖНАЯ ОТДЕЛКА
26 Отделка - сухая имитация бруса 23х175 мм, Карельский профиль с улучшенной характеристикой замка шип-паз      
27 Гидроветрозащитаная мембрана – Rockwool для наружных стен      
28 Контробрешетка/вентиляционный зазор – сухой обрезной брусок сечением 40x40 мм      
29 Карнизные свесы/наличники оконных и дверных проемов/углы дома – сухой строганная доска 20х96/146      
30 Настил террас / балконов (террасная доска вельвет 28мм)      
31 Устройство ограждений террас и балконов (сухая строганная доска 20х95/40х40)      
КРОВЛЯ
32 Покрытие – металлочерепица GrandLine, сталь 0,5 мм      
32 Обрешетка – сухая доска сечением 25x150 мм      
33 Контробрешетка/вентиляционный зазор – сухой брусок 50x50 мм      
34 Подкровельная антиконденсатная мембрана - Rockwool для кровель      
УТЕПЛЕНИЕ
35 Капитальные стены – 150 мм плитный базальтовый утеплитель Knauf      
36 Пол 1-ого этажа – 200 мм плитный базальтовый утеплитель Knauf      
37 Межэтажное перекрытие – 100 мм плитный базальтовый утеплитель Knauf      
38 Перегородки – 100 мм плитный базальтовый утеплитель Knauf      
39 Кровля – 200 мм плитный базальтовый утеплитель Knauf      
ВНУТРЕННЯЯ ОТДЕЛКА, КОМБИНИРОВАННАЯ
40 Гипсокартон влагостойкий Knauf по металлическому каркасу – стены санузлов      
41 Сухая панель "Штиль" хвойных пород 16x120 мм, класс АБ – стены и потолки остальных помещений      
42 Обрешетка – сухой строганный брусок сечением 30x40 мм – вентиляционный зазор      
43 Пароизоляционная мембрана – Rockwool для стен, перегородок, перекрытия      
НАСТИЛ ПОЛОВ
44 Настил пола – влагостойкая шпунтованная плита Quick Deck Professional 22 мм      
45 Обрешетка – сухая строганная доска сечением 20x100 мм, шаг 350 мм по осям      
46 Пароизоляция - Rockwool для стен, перегородок, перекрытия      
ЧЕРНОВОЙ ПОЛ
47 Сухая обрезная доска сечением 25x150 мм, шаг 50 мм, Сетка от грызунов - нижняя часть дома и вентиляционный зазор      
ОКНА
48 ПВХ Rehau, 60 мм, белые - трехкамерный профиль, двухкамерный стеклопакет, поворотнооткидные с отливами (200 мм), подоконниками (250 мм); откосы - сухая строганная доска      
ДВЕРИ
49 Входная – металлическая утепленная РОССИЯ      
50 Межкомнатные –  экошпон с доборами и наличниками с двух сторон      
ЛЕСТНИЦА
51 Сухая строганная доска сечением 50x200 мм с перилами и балясинами – строительная      
АНТИСЕПТИРОВАНИЕ
52 Neomid 430 – обвязка, лаги пола, черновой пол      
КРЕПЕЖ
53 Болты, саморезы оцинкованные EUROTEC для наружной отделки, саморезы по дереву оцинкованные, пластины оцинкованные, уголки оцинкованные, гвозди ершенные, гвозди, финишные гвозди      
  Стоимость 0 ЗАКАЗАТЬ 0 ЗАКАЗАТЬ 0 ЗАКАЗАТЬ

ОБОЗНАЧЕНИЯ НА ПЛАНИРОВКАХ

3H, КУХНЯ, КУХНЯ, АУЛА, VH, KHH, САУНА, TEKN + ТОП САД БРОНИРОВАНИЕ

Помещения

  • MH = спальня
  • ОН,AX = гостиная
  • TH, WORK, ASK = кабинет, мастерская
  • RT, RH = столовая
  • TKH = каминная комната
  • K = кухня
  • ET = прихожая
  • K = кухня
  • АК, АВОК = открытая кухня
  • BK = барная стойка
  • KK, KN = мини-кухня
  • KT = кухонное пространство
  • APUK = подсобное помещение
  • TUPAK, TPK, TK= кухня/гостиная
  • PK, SMALL = миниатюрная кухня
  • PH = душевая
  • PKH = раздевалка
  • S, LH = сауна , парная
  • KPH = ванная
  • SH = душевая комната
  • WC = туалет
  • KHH = подсобное помещение
  • KÄYT = коридор
  • AULA=холл
  • TEKN, TT = техническое помещение
  • VAR = кладовка
  • VH = гардероб
  • PYKK = шкаф для белья

Бытовая техника

  • AP, APK = посудомоечная машина
  • JK,VK = холодильник
  • KP, KPI = центральный пылесос
  • KT, LT = варочная панель
  • KU, KK = сушильный шкаф , сушильная машина
  • KVR, KR = сушилка
  • L = плита
  • M, MIK, MU = СВЧ
  • PAK, PK = морозильник
  • U = печь
  • VP, PK, PPK, VPK = стиральная машина

Устройства

  • LP,ILP,PILP = тепловой насос
  • JT = коллектор
  • KPI = механическая вытяжная вентиляция
  • LTO = рекуперация тепла
  • LVV = нагреватель горячей воды
  • PV = пожарная сигнализация